Rif: Adiacente Villa Borghese
ROMA
ROMA | - zona Pinciano - Villa Ada € 2.000- Appartamento
- Affitto
- 88 Mq
- 2 Vani
- 1 Camere
- 2 Bagni
- EPI: 175 kwh/m2 anno
- Classe energetica: G
- Descrizione
- Dettaglio immobile
- Consistenze
- Mappa
- Planimetrie
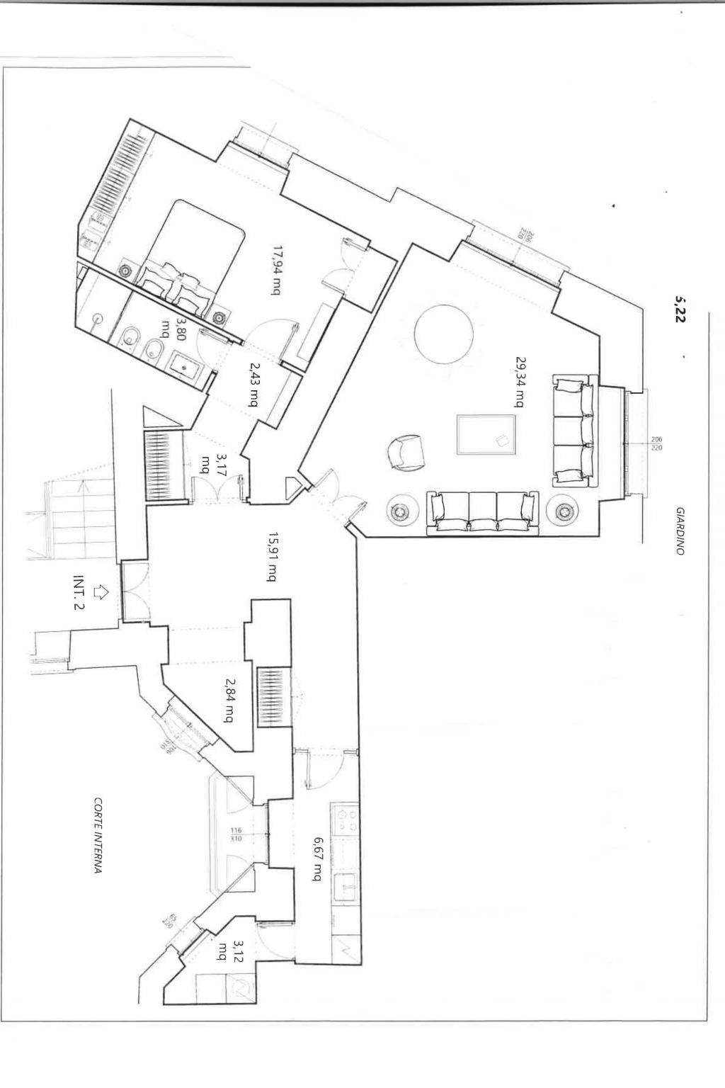
Tra Piazza verdi e Villa Borghese in palazzo d'epoca con servizio di portineria proponiamo appartamento totalmente ristrutturato posto ad un piano rialzato.
L'immobile ha una superficie calpestabile di 86 metri quadrati e risulta essere molto luminoso perchè angolare e con ampie finestre.
La strada in cui si trova l'edificio è anche riservata quindi l'appartamento è anche silenzioso.
La casa è composta da un ampio ingresso con piccola zona studio con balconcino, un bel salone angolare, una camera da letto con bagno, una cucina con balconcino ed un piccolo bagno di servizio.
La casa verrà data vuota con cucina arredata ed alcuni armadi a muro
i pavimenti sono in parquet e marmo nell'ingresso
La richiesta è di Eu. 2000 oltre oneri di condominio pari ad Eu. 250 salvo conguaglio ed utenze
Sono richieste garanzie bancarie
L'immobile ha una superficie calpestabile di 86 metri quadrati e risulta essere molto luminoso perchè angolare e con ampie finestre.
La strada in cui si trova l'edificio è anche riservata quindi l'appartamento è anche silenzioso.
La casa è composta da un ampio ingresso con piccola zona studio con balconcino, un bel salone angolare, una camera da letto con bagno, una cucina con balconcino ed un piccolo bagno di servizio.
La casa verrà data vuota con cucina arredata ed alcuni armadi a muro
i pavimenti sono in parquet e marmo nell'ingresso
La richiesta è di Eu. 2000 oltre oneri di condominio pari ad Eu. 250 salvo conguaglio ed utenze
Sono richieste garanzie bancarie
Contratto Affitto
Rif Adiacente Villa Borghese
Prezzo € 2.000
Provincia Roma
Comune Roma
Zona - Zona Pinciano - Villa Ada
Indirizzo Via Gaspare Spontini">
Vani 2
Camere 1
Bagni 2
Classe energetica
G (DL 192/2005)
EPI 175 kwh/m2 anno
Riscaldamento autonomo
Condizioni ottime condizioni
Spese condominiali € 250
Anno di costruzione 1920
Arredato si
Ascensore si
Cucina semiabitabile
| Descrizione | Superficie | Sup. comm. |
|---|---|---|
| Principali | ||
| Immobile - piano rialzato | 86 Mq | 86 Mqc |
| Balcone - piano rialzato | 6 Mq | 2 Mqc |
| Totale | 88 Mqc | |
Zoom della mappa
Apri con:
Apple Maps
Google Maps
Waze
Apri la mappa







