Rif: Adiacente Nazionale
ROMA
ROMA | - zona Monti € 2.600- Ufficio
- Affitto
- 93 Mq
- EPI: 65 kwh/m2 anno
- Classe energetica: G
- Descrizione
- Dettaglio immobile
- Consistenze
- Mappa
- Planimetrie
Adiacente Quirinale, in strada tranquilla vicina alla Banca d'Italia e poco trafficata proponiamo immobile accatastato C/1, ma adatto come studio professionale.
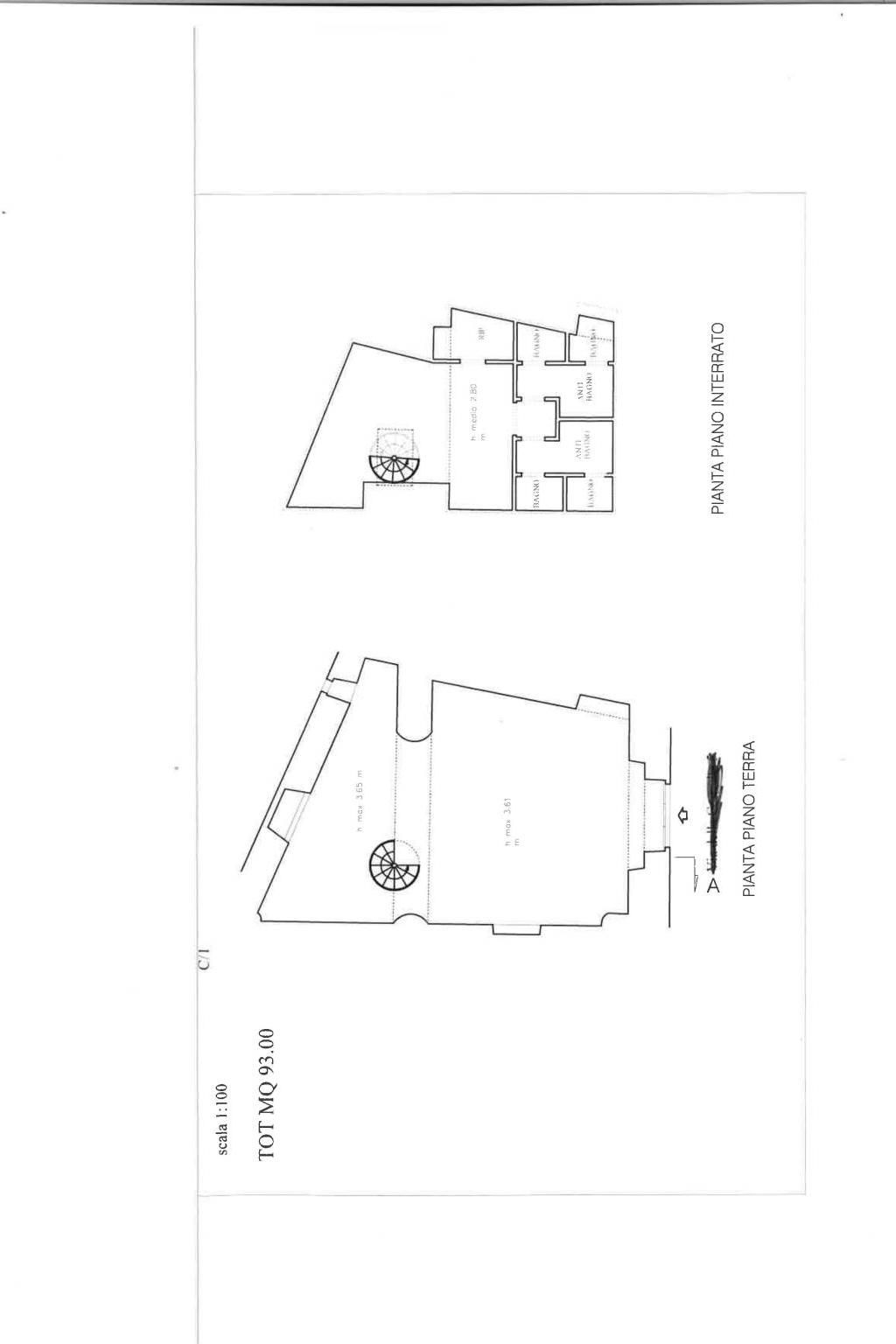
L'immobile ha una superficie totale di 93 metri quadrati disposti su due livelli, piano terra e piano seminterrato.
Al piano terra abbiamo un primo ambiente a cui si accede direttamente dall'esterno, ed una seconda camera da cui è possibile scendere al piano sottostante ove è presente una zona cucina e doppi servizi
La richiesta è di Eu. 2.600 mensili
Gli impianti di riscaldamento e condizionamento sono indipendenti
Sono richiesti deposuito cauzionale e fideiussione bancaria
L'immobile ha una superficie totale di 93 metri quadrati disposti su due livelli, piano terra e piano seminterrato.
Al piano terra abbiamo un primo ambiente a cui si accede direttamente dall'esterno, ed una seconda camera da cui è possibile scendere al piano sottostante ove è presente una zona cucina e doppi servizi
La richiesta è di Eu. 2.600 mensili
Gli impianti di riscaldamento e condizionamento sono indipendenti
Sono richiesti deposuito cauzionale e fideiussione bancaria
Contratto Affitto
Rif Adiacente Nazionale
Prezzo € 2.600
Provincia Roma
Comune Roma
Zona - Zona Monti
Indirizzo Via Mazzarino">
Classe energetica
G (DL 192/2005)
EPI 65 kwh/m2 anno
Riscaldamento autonomo
Condizioni ottime condizioni
| Descrizione | Superficie | Sup. comm. |
|---|---|---|
| Principali | ||
| Ufficio - piano terra | 60 Mq | 60 Mqc |
| Ufficio - seminterrato | 33 Mq | 33 Mqc |
| Totale | 93 Mqc | |
Zoom della mappa
Apri con:
Apple Maps
Google Maps
Waze
Apri la mappa







