Rif: Adiacente via Chiana
								
	
							
						ROMA
ROMA | - zona Trieste - Coppedè € 1.280.000- Appartamento
- Vendita
- 189 Mq
- 6 Vani
- 4 Camere
- 3 Bagni
- EPI: 175 kwh/m2 anno
- Classe energetica: F
- Descrizione
- Dettaglio immobile
- Consistenze
- Planimetrie
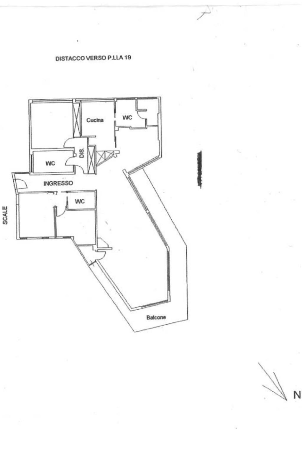
											Proponiamo in vendita, in palazzo signorile situato nel tratto di via Salaria adiacente via Panama e via Chiana, un appartamento posto al primo piano con ascensore.
L'immobile ha una superficie di 180 metri quadrati ed è in ottime condizioni.
E' composto da un ingresso/galleria che si apre su un ampio salotto con camino e con grandi vetrate apribili che permettono di accedere alla terrazza di circa 30 metri quadrati che gira tutta intorno alla rappresentanza composta anche da una sala da pranzo separata. Tutta questa zona risulta essere molto luminosa e con affacci gradevoli.
Attigua alla sala da pranzo abbiamo una bella cucina e una zona servizio comn camera e bagno.
La zona notte è composta da una camera da letto principale preceduta da un disimpegno con armadi a muro ed un bagno e da altre due camere da letto più piccole con un secondo bagno padronale.
Il riscaldamento è centralizzato ed è presente l'aria condizionata.
L'immobile ha inoltre una cantina di pertinenza
La proprietà ha la possibilità di parcheggiare un auto nel garage condominiale
La richiesta è di Eu. 1.280.000
										L'immobile ha una superficie di 180 metri quadrati ed è in ottime condizioni.
E' composto da un ingresso/galleria che si apre su un ampio salotto con camino e con grandi vetrate apribili che permettono di accedere alla terrazza di circa 30 metri quadrati che gira tutta intorno alla rappresentanza composta anche da una sala da pranzo separata. Tutta questa zona risulta essere molto luminosa e con affacci gradevoli.
Attigua alla sala da pranzo abbiamo una bella cucina e una zona servizio comn camera e bagno.
La zona notte è composta da una camera da letto principale preceduta da un disimpegno con armadi a muro ed un bagno e da altre due camere da letto più piccole con un secondo bagno padronale.
Il riscaldamento è centralizzato ed è presente l'aria condizionata.
L'immobile ha inoltre una cantina di pertinenza
La proprietà ha la possibilità di parcheggiare un auto nel garage condominiale
La richiesta è di Eu. 1.280.000
Contratto Vendita
Rif Adiacente via Chiana
Prezzo € 1.280.000
Provincia Roma
Comune Roma
Zona - Zona Trieste - Coppedè
Indirizzo Via Salaria 326">
Vani 6
Camere 4
Bagni 3
	Classe energetica
		
			F (DL 192/2005)
		
	
	
		EPI 175 kwh/m2 anno
		
		Piano 1 / 5
	
		Riscaldamento centralizzato
	
		Condizioni ottime condizioni
	
		Spese condominiali € 241
	Anno di costruzione 1960
Arredato si
Ascensore si
Cucina abitabile
                                
											
										| Descrizione | Superficie | Sup. comm. | 
|---|---|---|
| Principali | ||
| Immobile - 1° piano | 177 Mq | 177 Mqc | 
| Terrazza - 1° piano | 30 Mq | 9 Mqc | 
| Cantina - seminterrato | 10 Mq | 2 Mqc | 
| Totale | 188 Mqc | |

 
															 
															 
															 
															 
															 
															 
															 
															 
															 
															 
															 
															 
															 
															 
															 
															 
															 
															 
															 
															 
															 
															 
															 
															 
															 
															 
															 
															 
															





